La Necropoli delle Pianacce. (Romagnoli Stefano)

Nel 1995 durante la scrittura di un libro io ed altri miei due colleghi, scoprii questa necropoli, ne disegnai alcune tombe, e la loro posizione ed orientamento.
Sapevamo benissimo che la necropoli era veramente vasta e numerosa, ma siccome le nostre scoperte erano parecchie, ed in 14 zone di Sarteano, ci limitammo a segnalare l'ubicazione delle sepolture più importanti, che secondo i nostri studi dovevano trovarsi in quel luogo.

Ecco una delle piantine da noi disegnate e consegnate in varie occasioni a più organi competenti, durente i tentativi di rivendicare le nostre scoperte:

 

 

Ed ecco ad oggi, la situazione degli scavi nel pianoro:

 

 

Adesso, con un po' di adattamenti proviamo a sovrapporre il nostro disegno del 1995, a quello della situazione attuale:

Come potete facilmente osservare, tre delle principali sepolture sul pianoro in questione, coincidono perfettamente:
sono le due alle estremità della schiera, e quella centrale poi risultata essere quella della Quadriga Infernale.


Ecco i risultati ottenuti con gli ultimi scavi condotto dalla Soprintendenza, e l'ausilio del Gruppo Archeologico Sarteanese:

Resti di una fondamenta di chiara origine Etrusca, il moro sembra delimitare un semicerchio
con la base piatta e lineare:


 

Qui sotto si può vedere con una elaborazione al computer la chiara forma che doveva avere
il basamento dell'ipotetico monumento.

 

 

 

Ma sappiamo anche che il classico Tempio Etrusco, di solito aveva una struttura simile
a quella riportata qui sotto.

Ovunque guardiate, vi accorgerete che il "Tempio" Etrusco, aveva quasi sempre
la stessa forma e stile, con l'eccezione di alcuni "tempietti" trovato nell'Orvietano e Viterbese, a base rotonda, ma comunque mai con una struttura a semicerchio facente parte dell'insieme, o comunque
fondamenta di questo genere.

---------------------------------------------------------------

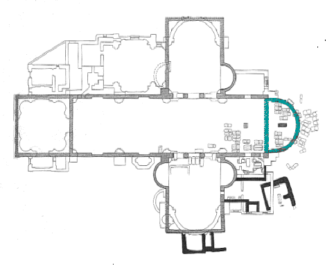
Ma allora nello scavo delle Pianacce, allora,  cosa è stato trovato?  di cosa sono quelle fondamenta sotterranee?


 

La pianta qui sopra ha una parte "quella in verde" che potrebbe somigliare molto
alla nostra struttura? o sbaglio?

Anche questo disegno ha la parte anteriore che somiglia alla nostra struttura.

Anche questo altro disegno ha una parte che somiglia alla nostra struttura.

E che ne dite di questo?:

Tutte quelle che  abbiamo visto fino ad adesso, e che hanno sempre una parte
somigliante alla struttura in questione, non sono piante di "templi", ma di "Mausolei".